Skip to main content

BlazeFrame® RipTRAK™ Shaftwall

head-of-wall deflection track - 1 & 2 hour system

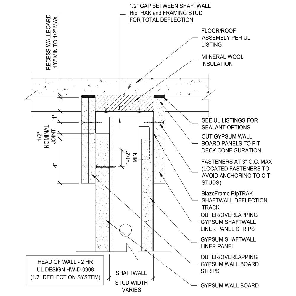
BlazeFrame RipTRAK Shaftwall is a ceiling runner with an offset shoulder that represents the thickness of the wall material (5/8" or 1-1/4").  A second piece of board/wall material is fit flush to the fluted deck or slab and is then attached to the shoulder. The BlazeFrame RipTRAK Shaftwall is a UL tested fire-rated head-of-wall joint system for up to 4" Total Deflection Movement.

Application(s): Shaftwall

BlazeFrame RipTRAK Shaftwall is a ceiling runner with an offset shoulder that represents the thickness of the wall material (5/8" or 1-1/4").  A second piece of board/wall material is fit flush to the fluted deck or slab and is then attached to the shoulder. This allows the deck and the BlazeFrame RipTRAK Shaftwall to move in relation to the shaftwall studs. This also allows the outer/overlapping board (the rip board) that is attached to the BlazeFrame RipTRAK Shaftwall to slide over the primary board/wall material.

The BlazeFrame RipTRAK Shaftwall is a UL tested fire-rated head of wall joint system. Meets UL 2079, 5th edition; HW-D-1141 and HW-D-0908. This is good for both roof and wall assemblies. Caulking between the shoulder board and the roof/floor assembly is required.

 

Need help with ordering the right profile?

Is total deflection the same as deflection gap?

  • Not at all. Yep, it can be confusing but we're here to help explain the differences.
  • The image to the right helps explain why they are different:

View Product Submittal for more detailed info on deflection and profile sizes.

Review ClarkDietrich's UL Fill, Void or Cavity Materials Listings for construction / assembly information.

 

Code Approvals & Performance Standards

  • AISI S100-16 (2020) w/S2-20 North American Specification for the Design of Cold-Formed Steel Structural Members
  • AISI S220-20 North American Standard for Cold-Formed Steel Framing - Nonstructural Members
    • (Compliant to ASTM C645 , but IBC replaced with AISI S220 in IBC 2015)
    • Section A3 Material - Chemical & mechanical requirements (Referencing ASTM A1003/A1003M)
    • Section A4 Corrosion Protection (Referencing ASTM A653/A653M)
    • Section C Installation - (Referencing ASTM C754)
  • UL Designs 2079 Fifth Edition Tests for Fire Resistance of Building Joint Systems
    • IBC requires fire-resistant joint systems be tested in accordance w/the requirements of either ASTM E1966 or UL 2079.
  • UL File Number R26034-XHLI Full list of MaxTrak and RipTrak UL design assemblies
  • SDS For ASTM A1003 Steel Framing Products For Interior Framing, Exterior Framing and Clips/Accessories

ordering Form

To order BlazeFrame RipTRAK Shaftwall based on the system you need:
(Click here for an Ordering Form)

 

PRoduct submittal SHeets

Click the below Product Code to view Submittal/Tech Datasheet.

Product Code Description
RipTRAK Shaftwall (1HR) for 4" Total Deflection - Series 4 BlazeFrame® RipTRAK™ Shaftwall 1 HOUR SYSTEM
RipTRAK Shaftwall (1HR) for 3" Total Deflection - Series 3
RipTRAK Shaftwall (1HR) for 2" Total Deflection - Series 2
RipTRAK Shaftwall (1HR) for 1" Total Deflection - Series 1

 

Product Code Description
RipTRAK Shaftwall (2HR) for 4" Total Deflection - Series 4 BlazeFrame® RipTRAK™ Shaftwall 2 HOUR SYSTEM
RipTRAK Shaftwall (2HR) for 3" Total Deflection - Series 3
RipTRAK Shaftwall (2HR) for 2" Total Deflection - Series 2
RipTRAK Shaftwall (2HR) for 1" Total Deflection - Series 1

ClarkDietrich SubmittalPro®

Submittal sheets for the exact product you're looking for can be created by using ClarkDietrich's SubmittalPro® Product Submittal System.